
【產品用途】
盲(máng)板閥又稱眼鏡(jìng)閥、翻板(bǎn)閥、扇形閥,廣泛應用(yòng)於工(gōng)礦企(qǐ)業、市政、環保等行(háng)業的氣體介質管理係統中,尤(yóu)其適用於有害、有毒、易燃氣體的(de)絕對切(qiē)斷。亦適宜做管道終端的盲板,以縮(suō)短檢修時間或方便連接新的管路。
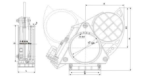
【產品結構及特點】
液動扇形(xíng)盲板閥主要由左閥體、右閥體、絲杆副、翻板、密封圈、杠杆、液壓油缸等零件(jiàn)組成(chéng),並由底座、支撐柱構成一個(gè)剛性結(jié)構體。閥門中設有夾緊油缸和翻板油缸,夾緊油缸通過杠杆副和絲(sī)杠螺旋副驅動左(zuǒ)、右(yòu)閥(fá)體完成鬆開、夾緊動作,翻(fān)板油(yóu)缸驅動翻板(bǎn)完成開關動作(zuò)。橡膠密封圈鑲(xiāng)嵌在翻板上,具有耐高溫、密封性能好、更換方便、使用壽命長等特點。
【產品主要參數】
公稱壓力MPa 0.25 0.15
0.10 0.05
密封試驗壓力MPa 0.275 0.165 0.11 0.055
強(qiáng)度試驗壓力MPa 0.40 0.225 0.15 0.075
適用溫度℃ 丁腈(jīng)橡膠 矽橡膠 氟橡膠 <120 <250 <300
【主要外形和(hé)連接(jiē)尺寸】
|
DN |
D |
D1 |
b |
n-φd |
L |
|
300 |
440 |
395 |
18 |
12-φ22 |
500 |
|
350 |
490 |
445 |
18 |
12-φ22 |
600 |
|
400 |
540 |
495 |
24 |
16-φ22 |
600 |
|
450 |
595 |
550 |
24 |
16-φ22 |
600 |
|
500 |
645 |
600 |
26 |
20-φ22 |
600 |
|
600 |
755 |
705 |
26 |
20-φ26 |
600 |
|
700 |
860 |
810 |
26 |
24-φ26 |
600 |
|
800 |
975 |
920 |
35 |
24-φ30 |
800 |
|
900 |
1075 |
1020 |
35 |
24-φ30 |
800 |
|
1000 |
1175 |
1120 |
35 |
28-φ30 |
800 |
|
1100 |
1275 |
1220 |
35 |
36-φ30 |
800 |
|
1200 |
1375 |
1320 |
35 |
32-φ30 |
800 |
|
1300 |
1475 |
1420 |
35 |
36-φ30 |
800 |
|
1400 |
1575 |
1520 |
35 |
36-φ30 |
800 |
|
1500 |
1675 |
1620 |
35 |
36-φ30 |
850 |
|
1600 |
1790 |
1730 |
35 |
40-φ30 |
850 |
|
1800 |
1990 |
1930 |
35 |
44-φ30 |
1100 |
【產品結構】

如果(guǒ)您對報價或(huò)合作有任何疑問,請隨時通過以下電子郵件與我們聯係 lg@jiye.js.cn 或使用以下(xià)查詢表(biǎo)格。 我們的銷(xiāo)售代(dài)表將在(zài)24小時內與您聯係。 感謝你對我們產品感興趣。